0 Bed
Key Features
- High quality office suites
- Available with luxury en-suite facilities
- Generous room proportions
- 24-hour secure access
- Located on the prestigious town centre street of Dogpole
Overview
Located in the much sort after town centre area of Dogpole, these high specification ensuite offices are available on flexible terms. Viewing is recommended to appreciate the high quality and generous room proportions on offer along with characterful features which include ensuite shower room facilities, 24-hour access, secure communal entrance and secure individual office entrance.
Details
Situation The property is prominently situated fronting onto St Marys Street
in the centre of the historic town centre of Shrewsbury and is located
in close proximity to many tourist attractions, such as Shrewsbury
Castle. The property also benefits from access onto St Alkmunds
Square, which is an attractive area in Shrewsbury in mixed residential
and commercial use and has St Alkmunds Church.
The surrounding occupiers include a number of complimentary
occupiers, such as Cromwells and The Prince Rupert Hotel, as well
as offices, retail units and unique boutiques, encouraging tourists,
shoppers, office workers and the surrounding local businesses and
high quality residential developments.
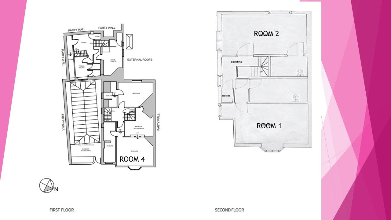
Room OneAvailable 400pcm
service charge £150pcm to include utilities
Hallway9' 11'' x 7' 5'' (3.02m x 2.26m)
Office 16' 1'' x 14' 1'' (4.90m x 4.29m)
En-suite shower room
Room TwoAvailable 400pcm
service charge £150pcm to include utilities
Office 16' 2'' x 15' 4'' (4.92m x 4.67m)
En-suite Shower Room
Room FourAvailable 500pcm
service charge £150pcm to include utilities
Entrance Hallway14' 1'' x 4' 0'' (4.29m x 1.22m)
Office 18' 7'' x 16' 2'' (5.66m x 4.92m)
Seating Room 14' 8'' x 12' 1'' (4.47m x 3.68m)
NOTEThe agent has not been able to verify the availability and nature of services. All interested parties should obtain verification through their solicitor or surveyor before entering a legal commitment to purchase.
Please note that our room sizes are quoted in metres to the nearest one tenth of a metre on a wall to wall basis. The imperial equivalent (included in brackets) is only intended as an approximate guide. We have not tested the services, equipment or appliances in this property; also, please note that any fixture, fittings or apparatus not specifically referred to in these details, is not included in the sale, even if they appear in any internal photographs. You are advised to commission appropriate investigations and ensure your solicitor verifies what is included in the sale, before entering a legal commitment to purchase. While we try to make our sales details accurate and reliable, Spencer & Jakeman does not give, nor does any Officer or employee have authority to give, any warranty as to the accuracy of any statement, written, verbal or visual. You should not rely on any information contained in these details when deciding whether to view or purchase.
En-suite Shower Room
Fees and Membership Please note Spencer Jakeman Property Management Limited is a member of Client Money Protect and the Property Redress Scheme.










