2 BedSemi DetachedHouse
Key Features
- A high quality new build semi-detached residence with 10 year warranty
- Attractive kitchen/breakfast room with a range of integrated appliance, modern soft close units and stylish worktops
- Two good bedrooms boasting airy accommodation throughout
- Contemporary shower room with feature tiling and quality white suites
- Driveway to the front for numerous vehicles and
- Enclosed rear garden with delightful patio area
- Solar PV panels, electric car charger and air source heat ump
- Popular locality with easy access onto the A5, which links through to the M54 motorway to Telford and thereon to the West Midlands Conurbations
Overview
An attractive brand new semi-detached residence, providing well proportioned free-flowing accommodation throughout. The property boasts a number of features including: Air source heating, Underfloor heating to the ground floor, Electrical car charging point, and Solar PV panels. The ground floor offers an entrance hallway with guest W.C cloakroom, which leads to the spacious living room and an open plan kitchen/breakfast room, which contains a number of integrated appliances, attractive soft close units with quality worktops and has the benefit of double glazed french doors leading out to rear patio. To the first floor, there are two bedrooms and shower room with feature tiling. To the rear is an sizeable garden enclosed by perimeter fencing and delightful patio ideal for outdoor dining. To the front is a block paved driveway for numerous vehicles and lawn area. Viewing is recommended to appreciate the accommodation on offer.
Details
LocationCharles View is a superb new build development, positioned to the south easterly side of the town. The development sits in a highly desirable residential area just off London Road, with a number of amenities close by, which include shops, Shrewsbury College and Prestfelde Preparatory School. Shrewsbury town centre is easily accessible and provides a comprehensive shopping centre, range of social and leisure facilities, together with a rail service. Commuters have excellent access from London Road directly onto the A5, which links through to the M54 motorway to Telford and the West Midlands Conurbations.
DirectionsFrom Shrewsbury town centre, proceed over the English Bridge, continue on through Abbey Foregate and up to the Column Roundabout. Take the second exit along London Road and proceed past Shrewsbury College and the Charles View Development will be identified after a short distance on the left hand side.
About the developer Cornovii are a Shropshire based developer, building beautifully deigned homes to a high specification, utilising systems that are sustainable. Charles View is an innovative development, which will no doubt produce excellent and wide market appeal, providing a mixture of two, three and four bedroom homes.
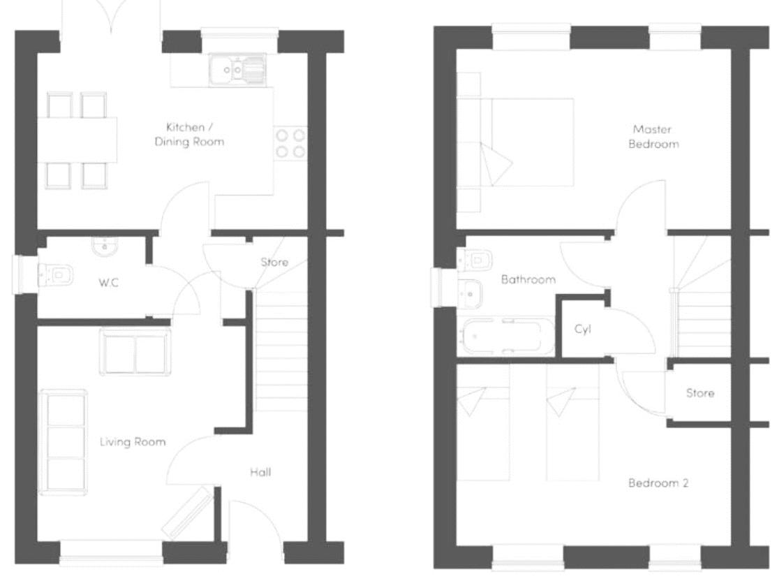
Entrance Hallway
W.C.
Store
Living Room11' 6'' x 10' 10'' (3.50m x 3.31m)
Kitchen/Breakfast Room18' 1'' x 12' 10'' (5.52m x 3.91m)
Stairs rising from first floor hallway to first floor landing
Bedroom One14' 4'' x 9' 7'' (4.37m x 2.92m)
Bedroom Two11' 7'' x 10' 7'' (3.54m x 3.22m)
Shower Room
Agent note Some photos featured are from various plots buy give a guide do the finish.
NOTEThe agent has not been able to verify the availability and nature of services. All interested parties should obtain verification through their solicitor or surveyor before entering a legal commitment to purchase.
Please note that our room sizes are quoted in metres to the nearest one tenth of a metre on a wall to wall basis. The imperial equivalent (included in brackets) is only intended as an approximate guide. We have not tested the services, equipment or appliances in this property; also, please note that any fixture, fittings or apparatus not specifically referred to in these details, is not included in the sale, even if they appear in any internal photographs. You are advised to commission appropriate investigations and ensure your solicitor verifies what is included in the sale, before entering a legal commitment to purchase. While we try to make our sales details accurate and reliable,Spencer & Jakeman does not give, nor does any Officer or employee have authority to give, any warranty as to the accuracy of any statement, written, verbal or visual. You should not rely on any information contained in these details when deciding whether to view or purchase.
























